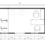
STEEL ECO BACKYARD KIT-5 By admin Posted May 21, 2021 In STEEL ECO BACKYARD KIT-52021-05-212021-08-15https://nuecosystems.com/wp-content/uploads/2021/05/nuecosystems-logo.pngNuecosystemshttps://nuecosystems.com/wp-content/uploads/2021/05/backyard5.jpg200px200px 0 0 STEEL ECO BACKYARD KIT Recent PostsGalvanized Steel Warehouse | Best option in 2022